مشخصات پروژه

نام پروژه دکتر انیس مرادی-رادیولوژی پارس
مدل پروژه
تاریخ شروع ۱۴۰۲/۱۱/۲۹
تاریخ پایان (تقریبی) ۱۴۰۳/۰۲/۱۵
تاریخ پایان (واقعی) -
کدپستی -
آدرس استان هرمزگان، بندرعباس، چهارباغ، سیدجمال‌الدین اسدآبادی، شفیع
توضیحات -
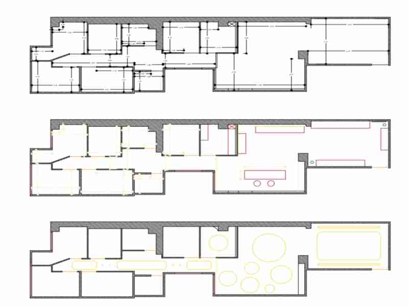
نقشه

جدول زمان بندی ساختارشکست

ردیف اسم وظیفه تاریخ شروع تاریخ پایان (تقریبی) تاریخ پایان (واقعی)
1 برقکاری ۱۴۰۲/۱۱/۰۱ ۱۴۰۲/۱۲/۲۹ ۱۴۰۲/۱۲/۱۹
2 گچ کاری ۱۴۰۲/۱۱/۲۹ ۱۴۰۲/۱۲/۲۹ ۱۴۰۲/۱۲/۰۱
3 آیتم های نصبی نهایی ۱۴۰۲/۱۱/۲۹ ۱۴۰۲/۱۲/۲۹ -
4 طراحی ۱۴۰۳/۰۱/۱۹ ۱۴۰۳/۰۲/۱۵ ۱۴۰۳/۰۲/۲۶

نمودار زمانی وظایف

نمودار زمانی وظایف

وزن وظیفه ها

ردیف اسم وظیفه وزن (بر اساس ساختارشکست) وزن (بر اساس مبلغ) میانگین وزنی وظایف
1 برقکاری 13.64 0 6.82
2 گچ کاری 4.55 0 2.27
3 آیتم های نصبی نهایی 40.91 0 20.45
4 طراحی 40.91 0 20.45

نمودار وزن وظیفه ها

نمودار وزن وظیفه ها

درصد پیشرفت پروژه

ردیف اسم وظیفه تاریخ شروع تاریخ پایان (تقریبی) تاریخ پایان (واقعی) درصد انجام شده(واقعی) انحراف از معیار
1 برقکاری ۱۴۰۲/۱۱/۰۱ ۱۴۰۲/۱۲/۲۹ ۱۴۰۲/۱۲/۱۹ 100.0 -
2 گچ کاری ۱۴۰۲/۱۱/۲۹ ۱۴۰۲/۱۲/۲۹ ۱۴۰۲/۱۲/۰۱ 100.0 -
3 آیتم های نصبی نهایی ۱۴۰۲/۱۱/۲۹ ۱۴۰۲/۱۲/۲۹ - 77.78

-44.44

4 طراحی ۱۴۰۳/۰۱/۱۹ ۱۴۰۳/۰۲/۱۵ ۱۴۰۳/۰۲/۲۶ 100.0

-33.33

اهم فعالیت های انجام شده

۱۴۰۲/۱۲/۰۱
وظیفه : گچ کاری ۱۴:۵۴
ساختار شکست: اصلاحات گچ کاری
۱۴۰۲/۱۲/۰۸
وظیفه : برقکاری ۱۲:۳۲
ساختار شکست: بازدید جناب ایمانی-برداشت لیست خرید
وظیفه : آیتم های نصبی نهایی ۱۲:۳۳
ساختار شکست: لوله آب و کفشور اتاق آخر
وظیفه : آیتم های نصبی نهایی ۱۲:۳۳
ساختار شکست: اندازه گیری چهار چوب حمام
۱۴۰۲/۱۲/۰۹
وظیفه : آیتم های نصبی نهایی ۲۰:۲۳
ساختار شکست: شروع نصب زیرساخت شبکه و دوربین
۱۴۰۲/۱۲/۱۴
وظیفه : برقکاری ۱۵:۲۶
ساختار شکست: خرید آیتم های برقی و ارسال به ساختمان
۱۴۰۲/۱۲/۱۷
وظیفه : آیتم های نصبی نهایی ۱۳:۲۳
ساختار شکست: خرید و نصب هالوژن و کلید و پریز 
۱۴۰۲/۱۲/۱۹
وظیفه : آیتم های نصبی نهایی ۱۴:۰۱
ساختار شکست: اتمام داکت کشی شبکه و دوربین مدار بسته
وظیفه : برقکاری ۱۹:۳۷
ساختار شکست: نصب هالوژن و پریز های رو کار
۱۴۰۳/۰۱/۱۹
وظیفه : آیتم های نصبی نهایی ۱۲:۲۳
ساختار شکست: خرید سرامیک ۲۵*۲۵
وظیفه : آیتم های نصبی نهایی ۱۲:۲۴
ساختار شکست:  باز کردن داکت شبکه و دوربین
وظیفه : طراحی ۱۲:۲۸
ساختار شکست: برداشت پلان
۱۴۰۳/۰۱/۳۱
وظیفه : طراحی ۲۲:۵۰
ساختار شکست: طرح سه بعدی اولیه پذیرش و لابی
وظیفه : طراحی ۲۲:۵۰
ساختار شکست: طراحی سه بعدی اتاق های عکس برداری و پزشک
وظیفه : طراحی ۲۲:۵۹
ساختار شکست: ویرایش اول طرح های اولیه پذیرش و لابی
۱۴۰۳/۰۲/۰۶
وظیفه : طراحی ۲۰:۵۷
ساختار شکست: دریافت بخش دوم ویرایش خای طراحی
۱۴۰۳/۰۲/۱۰
وظیفه : طراحی ۱۷:۵۹
ساختار شکست: دریافت پلان اندازه گذاری شده
۱۴۰۳/۰۲/۱۷
وظیفه : طراحی ۱۸:۳۸
ساختار شکست: اصلاحات طراحی مبلمان و سقف و سرامیک کف
وظیفه : طراحی ۱۸:۳۹
ساختار شکست: جلسه حضوری ۹ صبح- دکتر مرادی و زینل پور
۱۴۰۳/۰۲/۲۶
وظیفه : طراحی ۱۴:۵۷
ساختار شکست: دریافت ویرایش لابی و سقف ها و جای پرینتر 

تصاویر پیشرفت پروژه